Skip to content
Menu
Menu
Home
About Seal Harbor
About the Team
Home Designs
The Riverhead
The Footbridge
The Tidal Crest
Site Plan
Contact
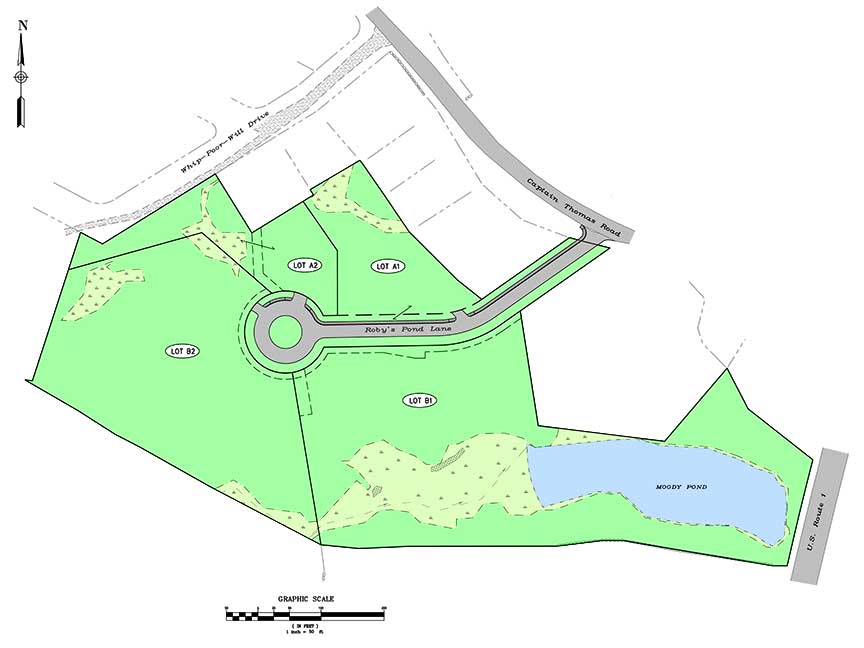
Seaside Farms – Site Plan
March 2026